|
|

|
|
KTX õ¾È¾Æ»ê¿ª ¡®6,735¾ï ±¤¿ªº¹ÇÕȯ½Â¼¾ÅÍ¡¯ °¡½ÃÈ
|
|
º¹±â¿Õ ÀÇ¿ø, ¡®Á¤ºÎ ½ÂÀΡ¯ °ßÀΡ¦Àü°Ý ÇöÀå Á¡°Ë ÁÖµµ
|
|
2026³â 03¿ù 13ÀÏ(±Ý) 17:41 [(ÁÖ)¿Â¾ç½Å¹®»ç] 
|
|
|
- 27Ãþ È£ÅÚ¡¤¿ÀÇǽº¡¤¼îÇθô Áý¾àµÈ 30¸¸§³ ±Ô¸ð ¡®ÃæÃ»±Ç °æÁ¦ Çãºê¡¯ ±¸Ãà
- 1,500¸é ´ë±Ô¸ð ÁÖÂ÷Àå È®Ãæ ¹× ȯ½Â °Å¸® ´ÜÃࡦÀ̿밴 ÆíÀÇ ±Ø´ëÈ
- º¹±â¿Õ, ¡°´Ü¼øÇÑ ¿ª»ç(æ¾Þì) ¾Æ´Ñ ¾Æ»êÀÇ ¿ª»ç(æ¸ÞÈ)¸¦ ¹Ù²Ù´Â »ç¾÷¡±
- ¡°¿¹»ê¡¤ÇàÁ¤ Áö¿ø ³¡±îÁö Ã¥ÀÓÁú °Í¡¦2030³â ¿Ï°ø ¹Ýµå½Ã Áöų °Í¡±
| 
| | ¡è¡è <»çÁø Á¦°ø=º¹±â¿Õ ÀÇ¿ø½Ç> | ¨Ï (ÁÖ)¿Â¾ç½Å¹®»ç | |

| 
| | ¡è¡è ´õºÒ¾î¹ÎÁÖ´ç º¹±â¿Õ ÀÇ¿ø(Ãæ³² ¾Æ»ê½Ã°©, ±¹È¸ ±¹Åä±³ÅëÀ§¿øÈ¸ °£»ç) | ¨Ï (ÁÖ)¿Â¾ç½Å¹®»ç | ÃæÃ»±ÇÀÇ ¼÷¿ø»ç¾÷ÀÌÀÚ ¾Æ»êÀÇ Áöµµ¸¦ ¹Ù²Ü ´ë¿ª»ç, ¡®KTX õ¾È¾Æ»ê¿ª ±¤¿ªº¹ÇÕȯ½Â¼¾ÅÍ¡¯°¡ º¹±â¿Õ ÀÇ¿øÀÇ °·ÂÇÑ ÃßÁø·ÂÀ» ¹ÙÅÁÀ¸·Î º»±Ëµµ¿¡ ¿Ã¶ú´Ù.
´õºÒ¾î¹ÎÁÖ´ç º¹±â¿Õ ÀÇ¿ø(Ãæ³² ¾Æ»ê½Ã°©, ±¹È¸ ±¹Åä±³ÅëÀ§¿øÈ¸ °£»ç)Àº 13ÀÏ(±Ý), »ç¾÷ ÇöÀåÀ» Á÷Á¢ ¹æ¹®ÇØ ÃßÁø »óȲÀ» Á¡°ËÇϰí 2030³â ¿Ï°øÀ» À§ÇÑ ¡®¼ÓµµÀü¡¯À» ¼±Æ÷Çß´Ù.
À̹ø »ç¾÷Àº ±×°£ ÁÖÂ÷³°ú º¹ÀâÇÑ È¯½Â µ¿¼±À¸·Î ½Ã¹Î ºÒÆíÀÌ ±Ø½ÉÇßÀ½¿¡µµ ºÒ±¸Çϰí, ¸·´ëÇÑ »ç¾÷ºñ¿Í ±â°ü °£ ÀÌÇØ°ü°è·Î ÀÎÇØ ÁöÁöºÎÁøÇØ ¿Ô´Ù. ÇÏÁö¸¸ ±¹È¸ ±¹Åä±³ÅëÀ§¿øÈ¸ ¿©´ç °£»çÀÎ º¹±â¿Õ ÀÇ¿øÀÌ Àü¸é¿¡ ³ª¼¸é¼ ºÐÀ§±â°¡ ¹ÝÀüµÆ´Ù.
º¹ ÀÇ¿øÀº ±¹ÅäºÎ ´ëµµ½Ã±Ç±¤¿ª±³ÅëÀ§¿øÈ¸(ÀÌÇÏ ´ë±¤À§)¿Í ²öÁú±ä ÇùÀǸ¦ À̾ ³¡¿¡, Áö³ÇØ 9¿ù ¡®KTX õ¾È¾Æ»ê¿ª ±¤¿ªº¹ÇÕȯ½Â¼¾ÅÍ °³¹ß°èȹ¡¯ ÃÖÁ¾ ½ÂÀÎÀ̶ó´Â Äè°Å¸¦ Àϱų´Ù. »ç½Ç»ó º¹ ÀÇ¿øÀÌ ¸ØÃçÀÖ´ø »ç¾÷ÀÇ ¡®°ñµçŸÀÓ¡¯À» »ì·Á³Â´Ù´Â Æò°¡´Ù.
| 
| | ¡è¡è <»çÁø Á¦°ø=º¹±â¿Õ ÀÇ¿ø½Ç> | ¨Ï (ÁÖ)¿Â¾ç½Å¹®»ç | |
À̳¯ ÇöÀå Á¡°Ë¿¡´Â ±è¿ë¼® ´ëµµ½Ã±¤¿ª±³ÅëÀ§¿øÀåÀ» ºñ·ÔÇØ ÃæÃ»³²µµ, ¾Æ»ê½Ã, Çѱ¹Ã¶µµ°ø»ç, ±¹°¡Ã¶µµ°ø´Ü µî ÇÙ½É °ü°èÀÚµéÀÌ ¸ðµÎ Áý°áÇß´Ù. º¹ ÀÇ¿øÀº ÇöÀåÀ» ±¸¼®±¸¼® »ìÇÇ¸ç °ü°èÀڵ鿡°Ô »ç¾÷ÀÇ ½Ã±Þ¼ºÀ» ÀçÂ÷ °Á¶Çß´Ù.
º¹±â¿Õ ÀÇ¿øÀº ¡°KTX õ¾È¾Æ»ê¿ª ±¤¿ªº¹ÇÕȯ½Â¼¾ÅÍ ±¸Ãà»ç¾÷Àº ´Ü¼øÇÑ ¿ª»ç(æ¾Þì) Çϳª¸¦ Áþ´Â °ÍÀÌ ¾Æ´Ï¶ó, ¾Æ»ê°ú Ãæ³²ÀÇ ¿ª»ç(æ¸ÞÈ)¸¦ ¹Ù²Ù´Â °Í"À̶ó°í Àǹ̸¦ °Á¶Çß´Ù.
ÀÌ¾î º¹ ÀÇ¿øÀº "1,500¸é ±Ô¸ðÀÇ ÁÖÂ÷Àå°ú ¿¬°á ºê¸´Áö·Î ȯ½Â µ¿¼±À» ȹ±âÀûÀ¸·Î ÁÙÀ̰í, 27Ãþ È£ÅÚ°ú 23Ãþ ¿ÀÇǽº°¡ µé¾î¼´Â ¾Æ»êÀÇ »õ·Î¿î ·£µå¸¶Å©¸¦ ¼¼¿ì´Â °Í¡±À̶ó¸ç, ¡°2030³â ¿Ï°ø ¾à¼ÓÀ» ½Ã¹Î ¾Õ¿¡ ¹Ýµå½Ã ÁöŰ°Ú´Ù¡±°í ¹àÇû´Ù.
À̹ø ÇÁ·ÎÁ§Æ®´Â ÃÑ 6,735¾ï ¿øÀÇ »ç¾÷ºñ°¡ ÅõÀԵǴ ¸Þ¸Óµå±Þ »ç¾÷ÀÌ´Ù. ¿¬¸éÀû ¾à 30¸¸§³ °ø°£¿¡ ºñÁî´Ï½º, ÁÖ°Å, ¼îÇÎ ±â´ÉÀÌ Áý¾àµÇ¾î õ¾È¾Æ»ê¿ª ÀÏ´ë´Â ´ëÇѹα¹ ±¤¿ª±³Åë°ú °æÁ¦ÀÇ ÇÙ½É °ÅÁ¡À¸·Î Àçź»ýÇÏ°Ô µÈ´Ù.
| 
| | ¨Ï (ÁÖ)¿Â¾ç½Å¹®»ç | |
º¹ ÀÇ¿øÀº ¡°±¹È¸ ±¹Åä±³ÅëÀ§¿øÈ¸ ¿©´ç °£»ç¶ó´Â ¸·ÁßÇÑ Ã¥ÀÓ°¨À» °¡Áö°í, ÀÌ »ç¾÷ÀÌ ´Ü ÇÏ·çµµ ÁöüµÇÁö ¾Êµµ·Ï ¿¹»ê°ú ÇàÁ¤ Áö¿øÀ» ²Ä²ÄÈ÷ ì±â°Ú´Ù¡±¸ç, ¡°Ãæ³²ÀÌ ´ëÇѹα¹ÀÇ »õ·Î¿î ¼ºÀåÀ» À̲ô´Â µ¿·ÂÀÌ µÇ°í, ¾Æ»ê ½Ã¹ÎÀÌ ÃÖ°íÀÇ ±³Åë º¹Áö¸¦ ´©¸± ¼ö ÀÖµµ·Ï Á¦ ¸ðµç ¿ª·®À» ½ñ¾Æº×°Ú´Ù¡±°í ¾à¼ÓÇß´Ù.
¸¶Áö¸·À¸·Î, º¹ ÀÇ¿øÀº ¡°À̹ø ±¤¿ªº¹ÇÕȯ½Â¼¾ÅÍ´Â ¾Æ»êÀ» ³Ñ¾î ´ëÇѹα¹ ±¤¿ª±³ÅëÀÇ »õ·Î¿î ÀÌÁ¤Ç¥°¡ µÉ °Í¡±À̶ó°í °Á¶Çß´Ù.
ÇÑÆí, ÀÛ³â 9¿ù ´ë±¤À§°¡ ½ÂÀÎÇÑ ¡®KTX õ¾È¾Æ»ê¿ª ±¤¿ªº¹ÇÕȯ½Â¼¾ÅÍ °³¹ß°èȹ¡¯Àº ¡®»ç¾÷½ÃÇàÀÚ ÁöÁ¤ ¹× °³¹ß½Ç½Ã°èȹ ½ÂÀÎ °í½Ã(ÃæÃ»³²µµ) ÀýÂ÷¸¦ ¾ÕµÎ°í ÀÖ´Ù.
| 
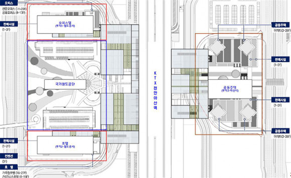
| | ¡è¡è KTXõ¾È¾Æ»ê¿ª ±¤¿ªº¹ÇÕȯ½Â¼¾ÅÍ ¹èÄ¡µµ <Á¦°ø=º¹±â¿Õ ÀÇ¿ø½Ç> | ¨Ï (ÁÖ)¿Â¾ç½Å¹®»ç | |
| 
| | ¡è¡è KTXõ¾È¾Æ»ê¿ª ±¤¿ªº¹ÇÕȯ½Â¼¾ÅÍ Á¶°¨µµ <Á¦°ø=º¹±â¿Õ ÀÇ¿ø½Ç> | ¨Ï (ÁÖ)¿Â¾ç½Å¹®»ç | |
|
|
|
|
¿Â¾ç½Å¹®»ç ±âÀÚ ionyang@hanmail.net ¡°Áö¿ªÁ¤½Å ¿Â¾ç½Å¹®¡± - Copyrights ¨Ï(ÁÖ)¿Â¾ç½Å¹®»ç.
¹«´Ü ÀüÀç ¹× Àç¹èÆ÷ ±ÝÁö -
|
|
|
|
(ÁÖ)¿Â¾ç½Å¹®»ç
±â»ç¸ñ·Ï | ±â»çÁ¦°ø : (ÁÖ)¿Â¾ç½Å¹®»ç
|
|
|
|
|
|
|
|
|
|
|
|

|
|
|
|
ÃÖ±Ù±â»ç
|
|
|
|
|
½Ã¼³°ü¸®°ø´Ü, Â÷º° ¾øÀÌ ÀÌ¿ëÇÒ ..
|
|
½Ã¼³°ü¸®°ø´Ü, ¾ÈÀü ÀÇ½Ä °íÃë ¹×..
|
|
À̸í¼ö ¿¹ºñÈĺ¸, Ãæ³²±³À°ÇöÀå ..
|
|
¾Æ»ê°í, ¶ß°Å¿î °ü½É ¼Ó¿¡ ÁøÇÐ ..
|
|
À̱â¾Ö¡¤ÀÌÀ±±¸¡¤À±¿øÁØ¡¤Àü³²¼ö..
|
|
Ãæ³²¾Æ»ê, â´Ü ù ½ºÆä¼È À¯´ÏÆû..
|
|
2026³â Àå¾ÖÀÎÀÇ ³¯ ¸Â¾Æ ¹ß´ÞÀå..
|
|
NH³óÇùÀºÇà ¾Æ»ê½ÃÁöºÎ, ÇϳªÀºÇà..
|
|
¾Æ»ê½Ã³ë»ç¹ÎÁ¤ÇùÀÇȸ, Áö¿ª°æÁ¦ ..
|
|
´ë¸¸ ¿©Çà¾÷°è, Ãæ³²°ü±¤ ¸Å·Â ü..
|
|
Çѱ¹À¯±³¹®ÈÁøÈï¿ø,ÀϺ» ŸÄí¼º..
|
|
°íÀ¯°¡ ÇÇÇØÁö¿ø±Ý ¡®±¹¹Îºñ¼ ¾Ë..
|
|
2027 ÃæÃ» U´ëȸ, ¼¼°è ¹«´ë ÇâÇÑ..
|
|
Èû½ë Ãæ³², Áßµ¿ Àå±âÈ Á¾ÇÕ´ëÃ¥..
|
|
¾Æ»êÆú¸®ÅØ´ëÇÐ, °ø°ø ¾ÈÀü ºÐ¾ß ..
|
|
Ãæ³²½Ã°¢Àå¾ÖÀκ¹Áö°ü, Á¦12ȸ Æò..
|
|
°¡Á·°ú ÀÌ¿ôÀ» ÁöÄÑÁÖ´Â ¾ÈÀüÀåÄ¡
|
|
Ãæ³²±³À°Ã», Á¦46ȸ Àå¾ÖÀÎÀÇ ³¯ ..
|
|
Ãæ³²°úÇб³À°¿ø ¸¶¼ú´Ü, ù ½Ãµ¿
|
|
¡®2026 °úÇÐÃàÁ¦¡¯ ¼ºÈ²¡¦¾à 5õ..
|
|
|